
P110
Prosty parterowy dom w stylu stodoły, łączący praktyczną funkcjonalność z efektownym wyglądem - szczególnie przy dwupoziomowej strefie dziennej.
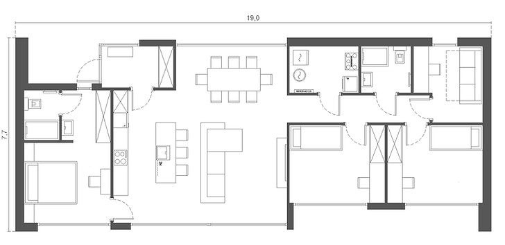
Układ funkcjonalny P110 polega na rozdzieleniu stref sypialnych rodziców i dzieci przestronną, wysoką strefą dzienną z salonem, jadalnią i kuchnią. Charakter strefy dziennej tworzy obustronne przeszklenie oraz wysokie ściany z masywnych, minimalistycznych paneli drewna klejonego.
Strefa sypialna rodziców obejmuje prywatną łazienkę i garderobę.
W drugiej części domu znajdują się dwie sypialnie, gabinet, łazienka
i pomieszczenie gospodarcze. Tu z kolei można uzyskać ciekawą aranżację pokojów dziecięcych przez podniesienie stropu, co umożliwia wykonanie antresol sypialnych i zwiększenie funkcjonalności i tak już niemałych pomieszczeń
Układ

Cena i specyfikacja
od 780.000 zł (brutto, z VAT 8%) za dom w stanie deweloperskim według zakresu:
-
systemowa płyta fundamentowa z instalacją kanalizacyjną wyprowadzoną poza obręb płyty oraz przepustami na potrzeby przyłączy energii elektrycznej i wody
-
konstrukcja budynku z paneli z masywnego drewna klejonego (świerk klasa GL24 lub wyższa) ściany zewnetrzne, strop oraz wybrane (konstrukcyjne) ściany wewnetrzne, panele o grubości od 10 (ściany) do 14 cm (strop).
-
konstukcja dachu z drewna klejonego (świerk klasa GL24 lub wyższa)
-
pokrycie dachu z blachy na rąbek prosty, system rynnowy ukryty w elewacji
-
ocieplenie ścian zewnętrznych wełną mineralną gr. 16 cm
-
elewacja z desek elewacyjnych thermo
z fragmentami tynkowanymi -
stolarka okienna trzyszybowa
z co najmniej jednym oknem przesuwnym HST -
drzwi wejściowe stalowe
-
ocieplenie dachu wełną mineralną gr. 30 cm
-
zabudowa poddasza oraz ściany działowe z płyt GK, szpachlowane i przygotowane do wykończenia
-
instalacja elektryczna z osprzętem (łączniki, gniazda, rozdzielnia)
instalacje niskoprądowe (alarmowa, komputerowa, TV-SAT) -
instalacje: wodna, kanalizacyjna i wentylacyjna
-
instalacja ogrzewania podłogowego (bez źródła ciepła)
-
schody wewnętrzne
-
posadzka cementowa na podłodze parteru i piętra
-
kompleksowa obsługa budowy w zakresie umownym (kierownik budowy, zagospodarowanie odpadów, zaplecze sanitarne)
